40 Years of Contemporary Art

-
Black and white rendering of a city street. There are two people crossing the street in front of a striped building with a extended awning over the walking pathway.
Location
MIT List Visual Arts Center, 20 Ames Street, Building E15, Cambridge, MA 02139
Featured Artists
MIT List Visual Arts Center, 40th Anniversary Archival Presentation
Explore all artists who have exhibited at the List in our Artist Index.

The MIT List Visual Arts Center traces its origins to the Hayden Gallery (founded in 1950), which brought artists and the MIT community together through diverse exhibitions and residency projects. 

In 1985, the gallery relocated to the newly constructed Wiesner Building, tripling in size and opening as the List Visual Arts Center. In the decades since, the List Center has built a reputation for presenting international and American artists at the forefront of contemporary art. The 40th Anniversary timeline on view in the Wiesner Atrium offers highlights from the past forty years of exhibitions, programs, and commissions—a record of the List Center’s role as a creative laboratory, supporting experimental art in the same spirit of curiosity and inquiry that defines MIT at large.     

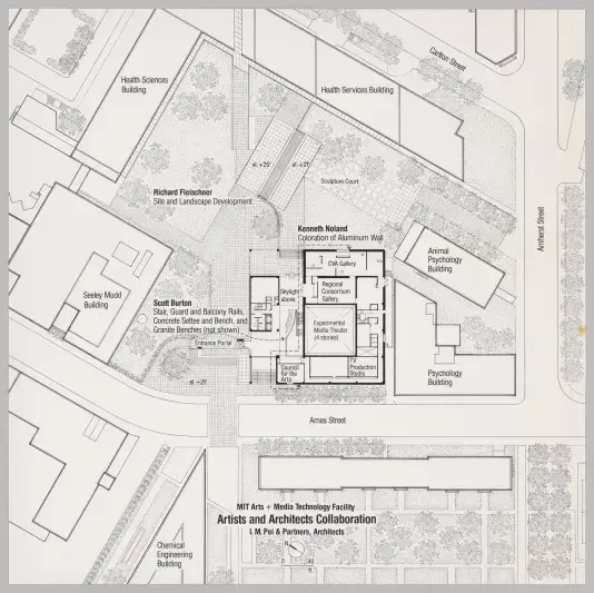
Gathered across several vitrines are documents related to the conception and construction of the Wiesner Building, including dialogues between its architect and artists. The Wiesner Building exemplifies MIT’s long-standing commitment to commissioning distinguished architecture and prioritizing site-specific public art; designed by I. M. Pei & Partners, the building was conceived as a collaboration between Pei and artists Scott BurtonRichard Fleischner, and Kenneth Noland. Burton’s balustrade and benches anchor the upper and lower atriums, Noland’s grid of painted aluminum panels animates interior and exterior walls, and Fleischner’s exterior plaza and courtyards offer spaces for gathering and movement. These three artworks are part of MIT’s acclaimed Public Art Collection, which is stewarded by the List Center and comprises over sixty works by more than fifty artists. Other documents on view highlight the events surrounding the opening of the List Center and the role of founding patrons Albert and Vera List. 

Sponsors

List at 40 is supported by generous donors to the 2025 McDermott Award Gala, hosted by the Council for the Arts at MIT.

Images